找回密码
 立即注册

QQ登录

只需一步,快速开始

微信登录,快人一步

QQ登录

只需一步,快速开始

微信登录,快人一步

中南·春溪集

2019-07-12 发布
首页 / 综合类 5515 0 0

的的的的的学习

积分:28

私信

本帖最后由 的的的的的学习 于 2019-7-13 13:25 编辑

一、项目解读
       本案位于西安市北部高陵区,南临泾河、渭河,作为大西安未来的主城区,高陵将主动承接大西安北跨渭河发展战略;南侧有西安浐灞湿地公园、未央湖公园,环境条件优越。整个示范区的面积并不大,位于交叉路口,空间沿城市界面展开,毗邻城市的繁华与喧嚣。


二、概念推演
        西安,作为十三朝古都,也曾绚烂多彩他人未可及,沧海桑田物是人非,曾经的未央宫、咸阳宫也没入滚滚的历史长河之中,只留下西安泾渭河畔的一轮明月,在漫漫长河里流淌,在璀璨星空中徜徉。浸润在历史文化感如此强烈的西安,怎样将历史感和永恒感代入景观?项目以“水映星河”为设计主题打造精致、纯净、浪漫的展示区空间
三、设计元素
       西安泾渭河畔的一轮明月,以星空为设计灵感,提取星空主题中星光、银河、月亮等元素,融入“漂浮”的水景其间。以“水映星河”为设计主题,打造星光掠影、浮华映月璀璨之境。  


四、设计难点
     项目前期,经过实地考察和设计的探讨,设计团队梳理出几个设计难点:
           1.场地较小,空间急促,入口开口方式是曲折迂回还是开敞直接。
           2.后场仅400平方米,进深12M、打围线边界紧靠地下室开挖线且与后期施工住宅建筑距离较近。

     经过多次推敲,最终确定景观应对策略:
           1.以完全开敞式来打造,通过景观与建筑的有机融合互相渗透打造整体性更强的前场景观。
           2.以酒店风格半私密精致洽谈空间为突破口,以静谧、轻奢、私享为设计方向。巧妙的通过景墙变化、围而不堵、透而不漏,使空间产生无限延伸。

五、方案设计
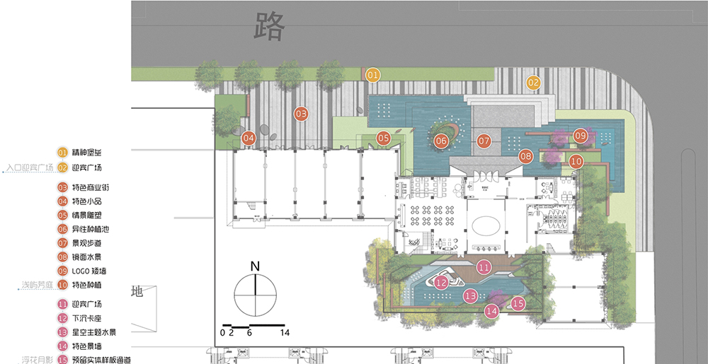
     售楼部建筑将整个场地分为两个部分:前场—浅屿芳庭和后场—浮花月影。设计利用开敞空间的展示性特性,以完全开敞式来打造,通过景观与建筑的有机融合互相渗透打造整体性更强的景观空间。


总平面图

鸟瞰图

前场—浅屿芳庭
以阶梯分层景观带和跌水层的景观视角,运用整形灌木带和时令花卉形成简洁、干净、层次分明的景观带效果。前场开敞的界面,建筑开门见山,在水景中放置一棵孤植树,避免建筑边界过于生硬的同时吸引人们视线形成视觉焦点。







细微之处见真章:星光映华庭,景致也映射人心,细细观赏,才知景致中设计者的种种用心。



△ 水中漂浮树池,利用古铜色拉丝铝板包边,浅花萦绕,纵享拾光略影

后场—浮花月影
巧妙的通过景墙变化、围而不堵、透而不漏,将空间产生无限延伸,精致镜面水配合灯光,环绕于休闲下沉卡座边,营造温馨浪漫空间,闲坐其间静享浩瀚星空环绕,臻享浅屿芳庭。看丛林深处薄雾朦胧,顽皮的涌泉不时跳出水面,微风吹过带来浓浓的度假享受。










景观步道.jpg (774.58 KB, 下载次数: 1761)

景观步道.jpg

前场细节.jpg (740.8 KB, 下载次数: 1743)

前场细节.jpg

星空主题水景(夜景).jpg (575.64 KB, 下载次数: 1709)

星空主题水景(夜景).jpg

后场2.jpg (584.64 KB, 下载次数: 1690)

后场2.jpg

后场3.jpg (612.04 KB, 下载次数: 1790)

后场3.jpg

前场.jpg (514.51 KB, 下载次数: 1760)

前场.jpg

前场1.jpg (621.74 KB, 下载次数: 1750)

前场1.jpg

前场2.jpg (579.68 KB, 下载次数: 1768)

前场2.jpg

前场3.jpg (746 KB, 下载次数: 1783)

前场3.jpg

前场4.jpg (599.61 KB, 下载次数: 1710)

前场4.jpg

使用道具 举报

的的的的的学习

积分:28

私信

全部评论
您需要登录后才可以回帖 登录 | 立即注册

本版积分规则