找回密码
 立即注册

QQ登录

只需一步,快速开始

微信登录,快人一步

QQ登录

只需一步,快速开始

微信登录,快人一步

Bak Gordon Arquitectos | Ricardo Bak Gordon 花园中的花园

2022-08-05 发布
首页 / 作品 4081 0 0

李姚姚

积分:124

私信

1号住宅对一栋建于十九世纪晚期的别墅进行了改造。建筑位于Oporto市,靠近大海。基地面积约为2200平方米,原本的设计有着典型的中产阶级特征。

House 1 is a rehabilitation project for a Villa from the end of the 19th century, in Oporto city, close to the seafront. It is a construction of bourgeois origin, located on a plot with about 2200 m2.

▼改造后室内空间概览,overall view of the interior after renovation ©Francisco Nogueira

原建筑由两个宏伟的楼层、一间阁楼以及地下室组成,现被改造成了四个居住楼层,对外设有宽敞的开窗。曾经的地下室空间变成了家庭房,通过露台与外界直接相连,类似于花园中的花园。

The House, which originally had two noble floors, an attic and a basement, has now four inhabited floors with generous openings to the outside. Where there used to be a basement, there is now a family room, in direct relation to the outside, through the proposed patio, a kind of garden inside the garden.

▼保留的入口大门
restored entrance gate ©Francisco Nogueira

▼门厅中的楼梯,staircase in the entrance hall ©Francisco Nogueira

▼从门厅看向客厅,view to the living room from the entrance hall ©Francisco Nogueira

▼客厅,宽敞的开窗,living room with generous windows

▼地下室改造为家庭房,family room renovated from the basement ©Francisco Nogueira

▼与露台相连的房间,room connected to the patio ©Francisco Nogueira

▼露台,花园中的花园,patio, garden in the garden ©Francisco Nogueira


改造和修复工作试图强化原有空间,替代掉一些功能,创造一种序列化的空间体验。为了达到这个目的,设计使用了新的威尼斯水磨石地面,tadelakt内墙,以及氧化黄铜窗框等结构材料。

The rehabilitation and restoration work sought to enhance the existing spaces, replacing some functions, but, above all, sequencing the experience of spaces. New venetian terrazzo floors, interior walls in tadelakt and exterior window frames in oxidized brass, structure the palette of materials used in this renovation.

▼楼梯间,staircase ©Francisco Nogueira

▼卧室,bedroom ©Francisco Nogueira

▼氧化黄铜窗框,window frames made of oxidized brass ©Francisco Nogueira

▼水磨石地面和木地板,terrazzo and wooden flooring ©Francisco Nogueira


▼细部,details ©Francisco Nogueira


花园的设计包含许多细节,建造了一个扩展住宅生活的景观空间。建筑本身曾常年覆盖在藤蔓之下。改造完成后,随着植物生长,外墙将再次覆满植被。

The design of the garden, in its many details, constitutes a landscape of distension for the life of the house. The House itself, which has always been covered with ivy on its exterior walls, should be covered again when it grows, after the intervention that has been now completed.


▼建筑外观与花园,external view of the house and the garden around ©Francisco Nogueira


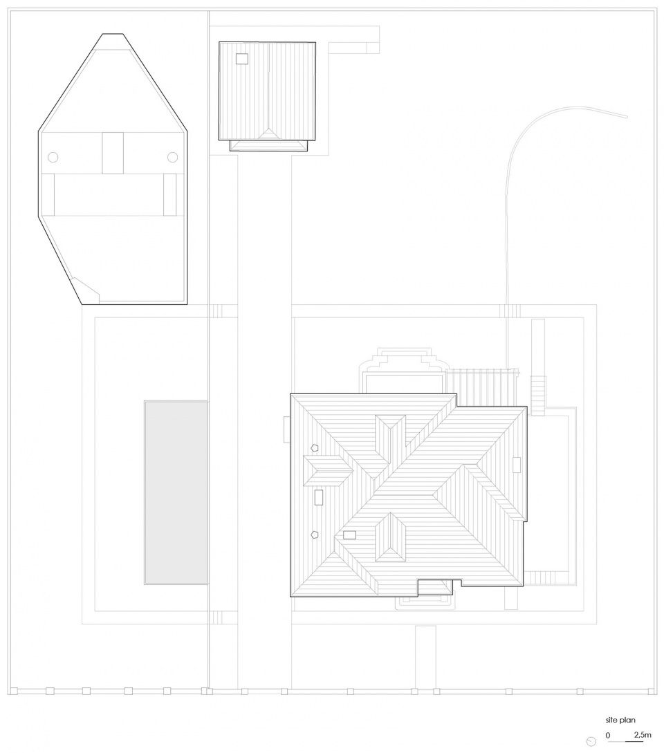
▼总平面图,site plan ©Ricardo Bak Gordon

▼地下一层平面图,basement floor plan ©Ricardo Bak Gordon

▼一层平面图,ground floor plan ©Ricardo Bak Gordon

▼二层平面图,first floor plan ©Ricardo Bak Gordon

▼三层平面图,second floor plan ©Ricardo Bak Gordon


▼立面图,elevation ©Ricardo Bak Gordon


▼剖面图,sections ©Ricardo Bak Gordon


Architecture: Ricardo Bak Gordon
Architecture Coordination: Daniela Cunha
Collaboration: Catarina Farinha, Tânia Correia
Site location: Oporto, Portugal
Client: Private
Contractor: Matriz LDA – Sociedade de Construções
Supervision and Project Management: Buildgest
Consultants: Atelier BBV (Landscape architecture); A400 – Projetistas e Consultores de Engenharia, LDA (Foundations and Structure / Hydraulics / Gas Installations / Electrics, Telecommunications, Security / Mechanics and HVAC / Acoustics / Thermic )
Areas: 530 m2 construction area
Date: Project 2018-19 [Works completion 2021]
Photographs: Francisco Nogueira


使用道具 举报

李姚姚

积分:124

私信

全部评论
您需要登录后才可以回帖 登录 | 立即注册

本版积分规则