找回密码
 立即注册

QQ登录

只需一步,快速开始

微信登录,快人一步

QQ登录

只需一步,快速开始

微信登录,快人一步

弘阳美的昕悦尚宸苑

2020-08-11 发布
首页 / 设计类 27916 0 0

飞扬

积分:87

私信

本帖最后由 飞扬 于 2020-8-20 14:28 编辑

     归家艺术之旅 | 弘阳美的昕悦尚宸苑
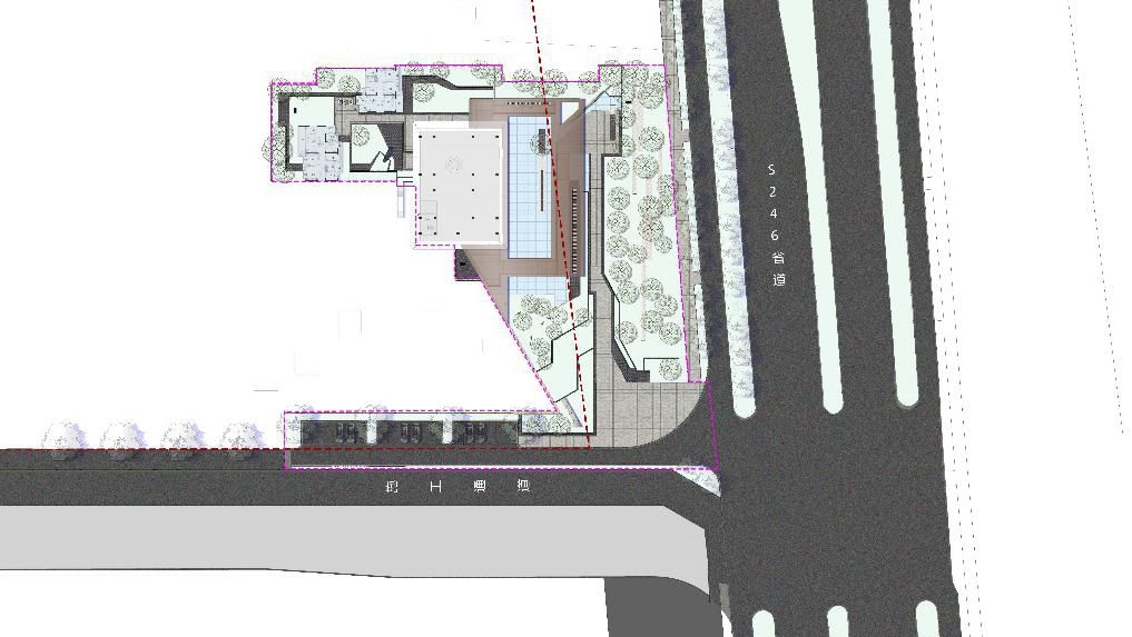
项目售楼处在场地内侧深处,为了优化场地不利因素,设计打破了一贯的空间布局方式,将城市界面景观、内院景观、建筑景观融为一体,开启大空间变化新体验,用时尚简约的线条设计,营造现代舒适宜居空间。


将建筑与景观融合带来现代简洁的空间感受。当下市场成熟产品过于相似,缺乏创新性及唯一性,我们希冀在满足使用者需求的基础上,让体验者具有充满仪式感的心里感受,进而让体验者置身其中。



现代简洁的城市界面,虚实的结合,景观的渗透,种植的变化明细界面界限,加强界面的引导性,营造出整体统一的市政界面。

——————篇章二 · 起韵——————
情境·入画




现代开放的空间入口,利用简洁利落的线条打造引导性的入口通道。


精神堡垒伫立入口,与墙体结合形成一体化的设计。


设计对外强调沿街展示,达到统一界面。用开放的空间形式,使建筑与景观相辅相成,使建筑面向城市延伸,增强建筑对城市的昭示性。


行进过程中,场地高差增强了主入口的仪式感,现代的种植池以素雅的形式迎接参观者,引导人流进入示范区,廊架外延形成极强的序列感。

——————篇章三 · 微语——————
境达·中庭


设计通过斜向入口增强昭示感,黑白材质对比增强入口的视觉冲击,随着艺术光影交叠,犹如穿梭造未来时光中,指引着前进的方向。

——————篇章四 ·境水 ——————
浮影·回廊



跨过门头,开阔的镜面水营造出豁然开朗的空间氛围,极致的光影变化带来极强的视觉冲击。时光长廊的设计展现了项目的未来感的特质。


光影交错下的精致雕塑无不彰显项目的艺术格调。



连廊的身影倒映在水面上,给人以震撼的视觉冲击力。


水帘形成内外空间的虚实分隔,形成内化的庭院空间,同时又能引入院外的景色。



沿着水院一角形成漏泉,镜面的材质使得空间虚实相互交叠,利用草坡丰富了场景的层次变化与趣味性,形成炫目的视觉体验。


透过水幕对外侧的风景若隐若现,游走在时光长廊内部能感受到光影的对话和视觉冲击力。

项目将雕塑、光影、声音等艺术符号融入场地提升艺术气息,丰富参观体验。生活化空间与自然环境相融,景观营造从细节处体现高品质的生活方式。艺术与自然在围合空间起承转合层层递进,春雨秋叶,瞬息浮梦,望抵达至你心灵深处的那个生活美学的家。

使用道具 举报

飞扬

积分:87

私信

全部评论
您需要登录后才可以回帖 登录 | 立即注册

本版积分规则