本帖最后由 睿住天元 于 2021-8-27 14:59 编辑
韶关大井民宿 · 以设计描摹归园田居广东韶关仁化,以典型丹霞地貌闻名于世。
仁化丹霞山( 中国红石公园)被列入世界遗产名录,并选入全球首批世界地质公园。
▲ 丹霞山脉下的大井村
河富大井村位于韶关仁化县,东接丹霞山余脉,是一座由明朝开始繁衍的古村落。
随着时代的发展,大井村与众多传统村落一样,面临着产业发展落后、人口严重流失、村容村貌破旧等问题。如今这座百年古村正逐渐失去往昔风采,现有153户人家。
 ▲ 大井村鸟瞰 2018年6月,韶关市乡村振兴公益基金会为推动当地乡村振兴,联合了多方努力,决定在大井村打造以民宿产业为特点的美丽宜居乡村和人居环境整治示范工程,以此带活大井村经济发展。
河富大井村民宿周边自然资源丰富,依托丹霞山良好的生态、地质、景观和独特的古樟树植被资源,成为一隅远离都市喧嚣的归园田居理想场所。
大井民宿东北向10km是丹霞山景区,层峦叠嶂的山脉是得天独厚的自然背景。场地西南面有一条曲径延绵的小溪流经过,仿佛一条丝带将本场地与山野间的屋舍、田野联系了起来。南面视野开阔,集中分布着连片且广袤的农田,同时联络外部的S246省道从农田中穿越而过,为民宿带来了外界的关注与活力。
▲ 基地周边环境
大井村现存建筑主要为砖混结构,风貌不具特色,但留存有多棵超百年古樟与古迹。大井民宿着眼点在于利用有限的资源,实现民宿经营的灵活性。
民宿建设的意图,是提供给村民及游客一个包容开放的公共活动和交往停留的独立空间。乡村振兴计划借由民宿改造,唤醒村落的活力,将“大井村”这张旅游名片推广得更远。
   左右滑动查看更多 ▲ 场地旧貌
与大多数依山而建的村舍不同,有14间客房和3栋别墅的大井民宿更靠近开阔的田野。
这个由荒废多年的小学拆除后,在原址新建的旅舍,如同古村那默默的守护者和旁观者,与村落及自然山体保持一种既有交集又独立疏远的对视姿态。
▲ 大井民宿
大井民宿的建设将古村落的生态价值、美学价值与乡村振兴有机结合。
以求让更多人关注古村落、古樟树,让大井村能够自我“造血”,引领生活、生产、生态“三生合一”的健康发展。
▲ 从省道入口看大井民宿
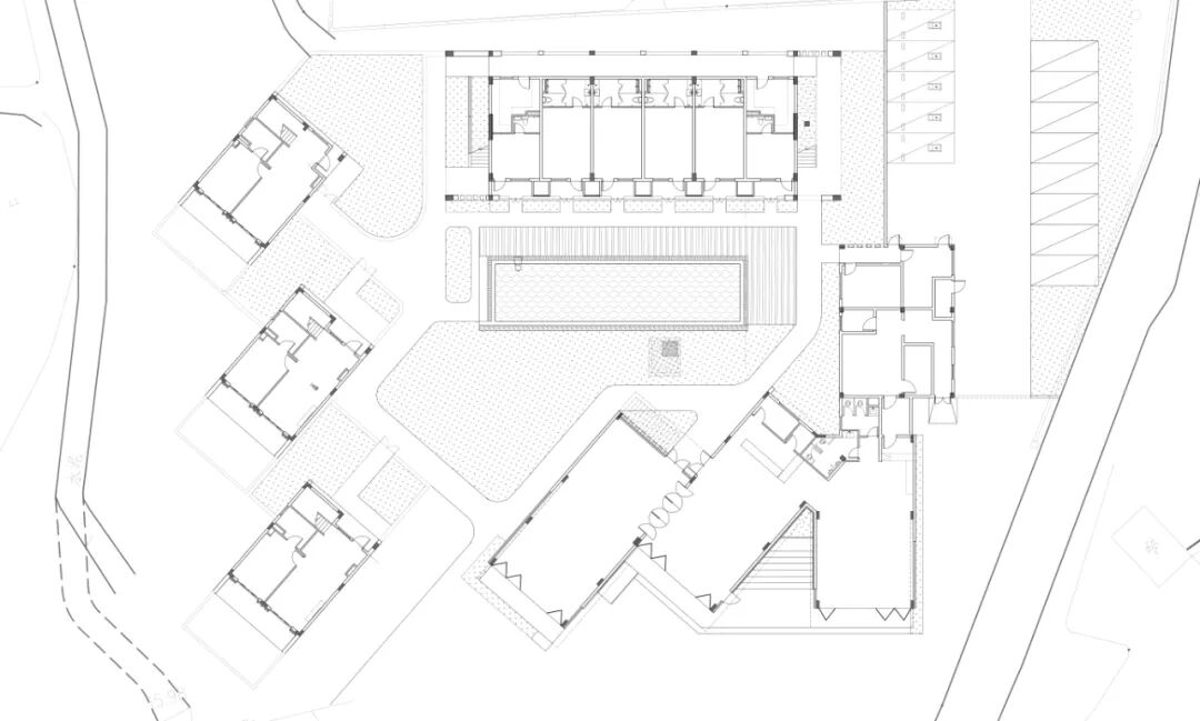
设计布局延续着村庄肌理,主楼与附属建筑沿着用地东西向展开,建筑风格融入村落,从容“隐”于周边整体环境,建筑体量化整为零,以此弱化面积过大所带来的体量。
    左右滑动查看更多 ▲ 古樟、古桥、溪流、古井、院落
古樟树作为建筑空间叙事的前言,“古桥、古井、古樟、溪流、院落”成为了设计的主要线索,运用内、外空间的转换、渗透来丰富建筑场景。
通过室外游廊连通大堂餐厅、书吧、独栋别墅、客房主楼等,产生一些“不方便”来回应乡村与城市的差异,犹如游走在小村庄内,延续古村落的空间体验。
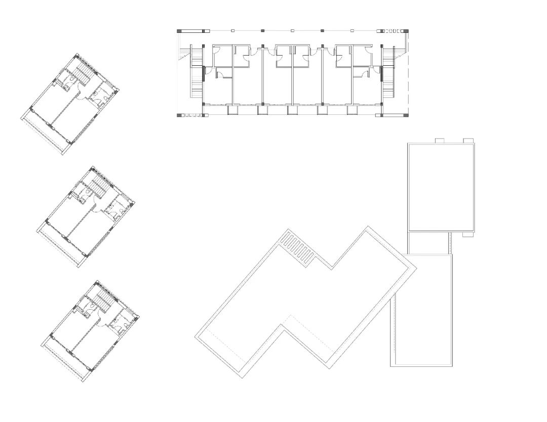
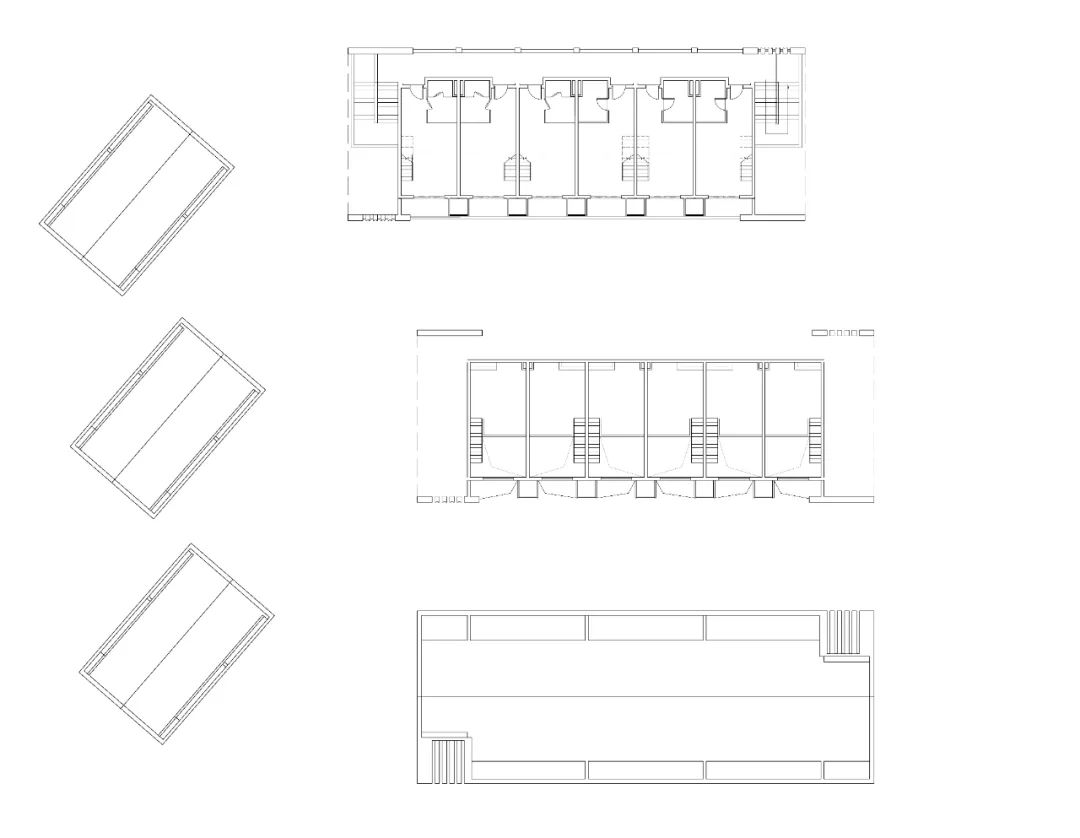
▲ 体块生成
  左右滑动查看更多 ▲ 总平面图
建筑楼栋紧挨古桥古井,均面向溪流及古树场景,布局提升了建筑内部的空间价值;同时也朝向远处的省道,突出了民宿项目整体的昭示形象,强化其可视性与可达性。
  ▲ 整体布局
有限空间的充分利用,提升了乡村的接待能力,同时可以在旅游淡季的闲日里为村民提供一个有效的公共活动空间,是本乡建设计的关键所在。
▲ 从入口广场看餐厅、酒店大堂、休闲书吧
设计剔除矫揉造作的装饰手法,采用混凝土漆面、木纹铝材、玻璃、砖这类日常所见的材料。尊重材料本身的纹理、质感和形态,自然而然,用纯粹的语言表达建筑的几何美学。
整个建筑低调地隐藏在村落之中,使身处其中的使用者,情感和思绪更好地被周围环境所接纳。
  ▲ 独栋别墅
建筑如同自然生长出来一般,成为院落景观的一部分。
镂空孔洞记录了一天中光影的轮转,树影婆娑,风景清明,整个建筑空间气韵通透。建筑的结构感与内外光影的交互,构建出随着时间变化的建筑趣味。
云山睥睨,远眺的山景渗透到休闲居住场景之中,拉近了游客与村落自然的距离。

▲ 客房主楼
围合的院落内布置有露天泳池,是庭院静谧环境的一注活力元素。
城市繁忙的旅人在享受安心恬荡的闲暇慢时光之余,也可以在这里体验运动快感。白天可以享受日光浴,夜晚池水倒映着银河星辰与璀璨灯光,惬意观赏众星捧月。
  ▲ 室外泳池
契合村落的自然氛围,建筑师意图通过开放的建筑形态,以及节制的介入,使新建筑在满足功能要求的前提下,用谦和与敬畏实现建筑和自然的平衡,进行自我调适。
▲ 餐厅
大井民宿以包容的态度,在公区空间上创造了一种新的可能。
设计结合大井小学原址及小溪古树古井元素,打造一个半围合的村落社交场域,衔接村落居民真实的日常生活,以实现民宿某种程度的场所自主。
  ▲ 独栋别墅
将民宿营造成一个可安放时间的容器,锁住美好,让这段归园田居的时光停留在驻足者心中。
   ▲ 建筑细部
在快速城市化的进程中,中国的一些乡村产生了走向衰落的趋势,环境遭到破坏,农村空巢,老旧建筑破败。新农村需要改变,需要复苏,需要重新吸引人们回归。
在此期间,环境的改变是关键的因素,如何营造一个新的环境?如何使乡村重获魅力?
乡村建设项目的兴起,是对城市化带来的一系列问题的反思。
通过对场地的“再定义”,重新描绘出一幅村落美好生活的浪漫愿景,唤醒人们对城乡返流的观念转变。
 ▲ 民宿夜景
写在最后 ——REMAC TY
作为一个乡村振兴项目 阅读与理解原始场址及居民生活场景 拾取本味古村落特质 成为了本次设计的初心
希望通过多元化的乡村话语 重塑乡村的精神家园 帮助乡村人民改善生活 实现产业转化乡村振兴...
///
设计图纸
▲ 首层平面图▲ 二层平面图 ▲ 三层平面图
|