| 本帖最后由 上海合乐工程咨询有限公司 于 2021-10-25 15:56 编辑 
 
 项目构思: 从国际化的视野,结合自身需求为宜宾学院临港校区指定未来发展框架,充分考虑开放、共享、融合的校区规划模式,并且经济集约的开发用地,紧凑高效的布置建筑空间,建立快慢有序的交通体系。梳理现状、确定规划轴线、合理划分组团、细化功能。从城市设计角度结合轴线与功能对校园组团进行尺度控制。 项目亮点: 设计围绕五大亮点: 1共享融合的设计理念。将学校公共建筑置于鸿儒路两侧,便于开放共享、提高整体利用率;尺度宜人的教学组团融合各专业学生。 2土地集约化利用理念。紧凑高效的布局,提高建筑容积率,土地更集约,为学校未来发展预留空间。    3中西文化交融的设计理念。文化沉淀的校门设计,中式屋顶与欧式立面元素的融合,中式园林庭院与西式景观轴线的融合。  4人性化的交通理念。风雨无阻的校园长廊体现了以人为本的设计,互不干扰的人车系统避免车流与人流的交叉。  5绿色山水的规划理念。山环水绕的校园,人工自然相结合的水系形成了三江口的概念。  
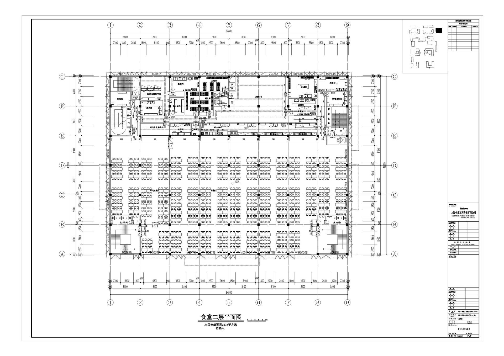
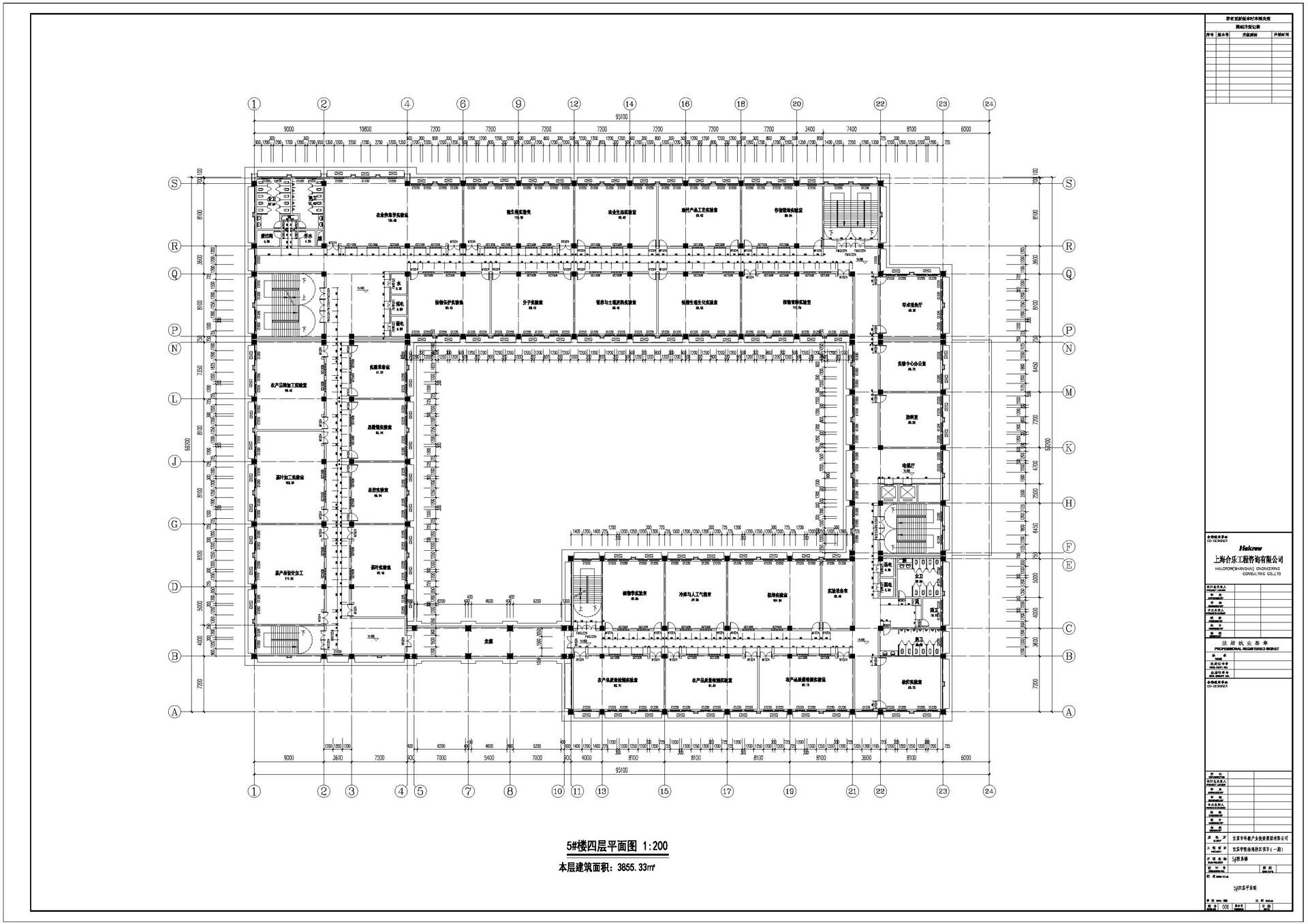
 平面图
 平面图
 平面图
 平面图
 立面图
 剖面图
 平面图
 平面图
 
 |