找回密码
 立即注册

QQ登录

只需一步,快速开始

微信登录,快人一步

QQ登录

只需一步,快速开始

微信登录,快人一步

Centr AI

2021-10-20 发布
首页 / 设计类 4334 0 0

B_architecten

积分:7

私信




项目位于比利时布鲁塞尔弗雷区的Albertpool区域,由两栋设有街区便利设施的建筑组成,在区域发展中起着核心作用。
Two buildings with amenities for theneighbourhood play the central part in the development of the Albertpool inVorst (Brussels).



这两座建筑是通往该区域的大门。新Albertpool区域使得这片城市活力区以堪称典范的方式呈现在地图上。
These two buildings are the gateway to thisdistrict. The new Albertpool is an excellent opportunity to put this vibrantpart of the city on the map in exemplary fashion.




礼堂和体育大厅等大型公共空间都位于建筑一角。十字路口的透明和半透明立面使内部功能更加生动。
Big public areas, such as the auditoriumand the sports halls are located on the buildings’ corners. The transparent andtranslucent façades on the intersection liven up the buildings’ functions.



功能单元紧凑地堆叠在一起。建筑的入口位于被覆盖的室外空间下面。The functional units are stacked ascompactly as possible. Beneath the covered outdoor spaces is the entrance tothe buildings.



本地特色餐厅位于一层,可以眺望新市镇广场,并与里面的门厅相连。门厅分布在建筑的不同楼层,因此对大楼的使用者来说,是理想的聚会场所。
The local restaurant on the ground floor has a view of the new town squareand is connected with the foyer inside. This foyer spreads over the differentfloors of the building and as such functions as a perfect meeting place for theusers of the complex.








甚至连屋顶露台都可以用于不同的活动,比如运动。Even the roof terrace can be used fordifferent activities, such as sports.   



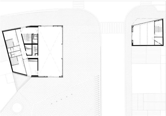
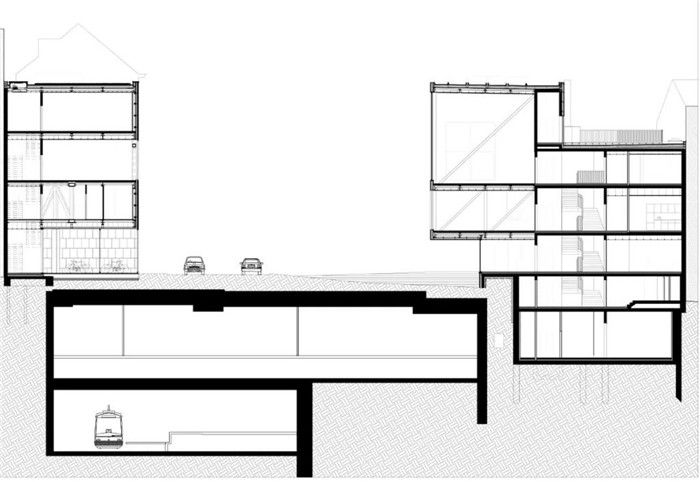
设计图纸


总平面图



一层平面图



二层平面图



三层平面图



四层平面图

东立面图


北立面图




西北立面图

南立面图
剖面图

使用道具 举报

B_architecten

积分:7

私信

全部评论
您需要登录后才可以回帖 登录 | 立即注册

本版积分规则