找回密码
 立即注册

QQ登录

只需一步,快速开始

微信登录,快人一步

QQ登录

只需一步,快速开始

微信登录,快人一步

西班牙瓦伦西亚AA住宅

2021-10-20 发布
首页 / 设计类 3740 0 0

Horma_Estudios

积分:5

私信


建筑外观 The exterior of the house

项目旨在是顺应街区的一处拐角位置,在那里,人们可以从各个角度看到一个连续、无边缘的外立面。连续、无间断的曲线,这种设计方法旨在将住宅成为周围环境的一部分。
The project aims to respond to a  corner where a continuous elevation, without edges, is offered to be seen from all angles, without prioritizing one look over another. The curve, understood as a line without discontinuity or startles, becomes the working tool for a house that pretends to be part of the environment that surrounds it.


住宅位于街区的一处拐角位置 The house is located at a corner

砖地下室解决了与地面的关系,并延伸了重要的穿孔元素以表达内部空间的丰富。室内并不遵循预先设定的安排,探索新空间并相互联系,从而实现自然光照与视野一直在移动变化。

A brick basement solves the relationship with level 0 and supports the continuous and strategically perforated element to express the spatial richness of its interior. Inside, the house does not obey pre-established orders, allowing the section to discover spaces and link them together to maintain natural light and the view always in movement.


砖地下室 Brick basement



内部空间的丰富 Spatial richness of interior

精心布置在房屋正面和通道的红砖,塑造了一层的地下室,往上则形成了二层与屋顶。
The brick, meticulously placed on the facade and access to the house, shapes the basement of the ground floor, on which volume that materializes the first floor and roof rests.



红砖细部 Brick details



可见地下室 Basement


在立面外墙上有开口,为特定的室内空间提供自然光照。

On the facade, openings are discovered that offer natural light to very specific interior spaces.


立面外墙有开口 Openings on the facade

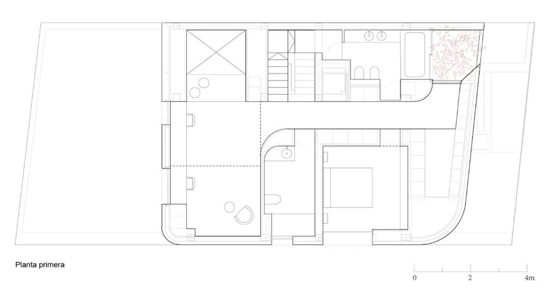
一层包括白天使用的住宅区域,这被理解为是一个单独的空间,其用途由不同的曲线和平面实现。

The ground floor includes the daytime use of the house, this is understood as a single space whose uses are configured by different curves and planes.


曲线与平面的组合 Combination of curve and plane

玻璃模糊了室外露台与室内的界限,创造了一个独特的空间。红色的木工制品和绿色的植被将房子和街道划分开来。
The patio, fused with the interior through the glass creates with this a space that could be unique. In it, the red carpentries and the green of the vegetation make up the border between the house and the street.


从露台望向室内 Look indoors from the patio


The patio fused with the interior through the glass 玻璃模糊了室外露台与室内的界限


从室内望向露台 Look the patio from the interior

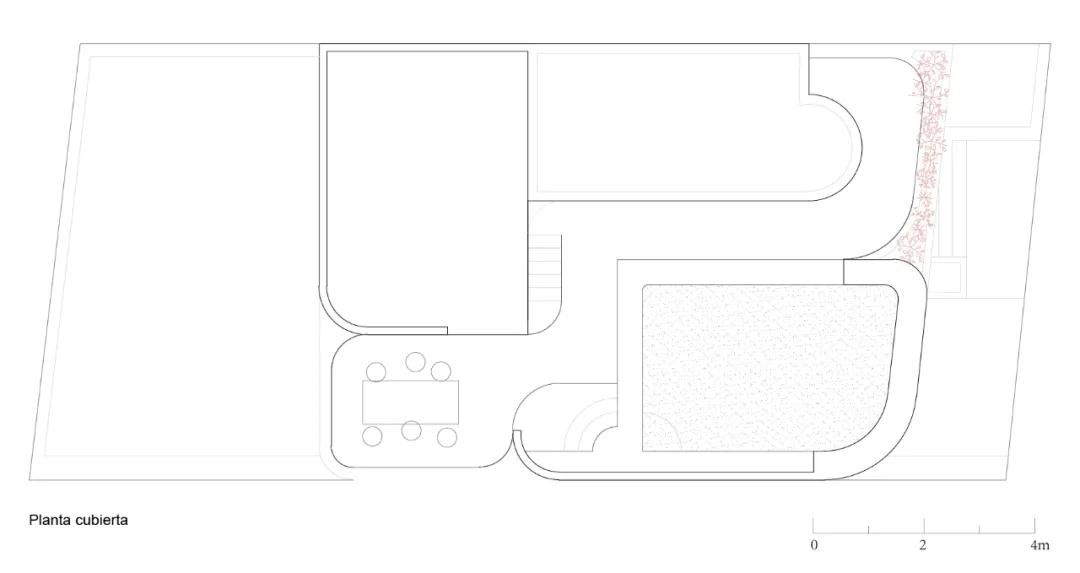
通过高度技巧可以实现将私人空间位于以下几层。上升路线止于屋顶,这是一个开放而独特的空间,在这里,泳池作为建筑语言和形式与其他部分同时存在,成为其独特空间之一。

The game of heights allows the most private spaces for individual use to be located in the following levels. The path ends at the roof, an open and unique space where pool accompanies the rest in language and form of the project and is specified as one of the unique places of the house.



屋顶泳池 Rooftop pool

砖块、植被和曲线元素构成了一座明显不遵循特定规律的房子,但毫无疑问它是为其新居民精心设计的。

Brick, vegetation and curves are the elements in charge of materializing a house that apparently it does not follow specific rhythms, but it is undoubtedly thought out and designed for its new inhabitants.



项目图纸


轴测图 Axonometric drawing


屋顶平面 Rooftop plan


二层平面 First floor


一层平面 Ground floor

主立面 Principal facade


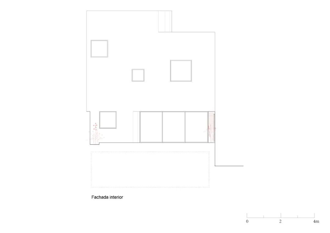
内立面 Interior facade


侧立面 Lateral facade


横剖面  Transversal section


纵剖面 Longitudinal section



使用道具 举报

Horma_Estudios

积分:5

私信

全部评论
您需要登录后才可以回帖 登录 | 立即注册

本版积分规则