找回密码
 立即注册

QQ登录

只需一步,快速开始

微信登录,快人一步

QQ登录

只需一步,快速开始

微信登录,快人一步

昆明市西山区第一中学普通高中强基提质及排危改造项目

2023-08-09 发布
首页 / 设计类 3501 0 0

云南省设计院集团有限公司

积分:52

私信

本帖最后由 云南省设计院集团有限公司 于 2023-8-9 19:41 编辑

项目概述
昆明市西山区第一中学位于昆明市西山区,是一所容纳了60个班共3000名学生的高级中学校区,校园占地4.3万平方米,总建筑面积共5.3万平方米,其中新建建筑面积3.73万平方米。校园周边城市环境商业和高层住宅为主,东侧有公园景观,东侧为海源中路。
问题剖析
1.项目用地标高低于市政道路标高1.8米,常年淹水,严重影响学校正常教学。
2.东侧为入滇河道新运粮河,需退距50米,南侧退让规划道路10米,加之原有建筑方向杂乱无章,可建设用地极为不规则。
3.在极限的可建设用地上需要容纳50个教学班、图书馆、实验室、风雨操场、报告厅、餐厅、厨房等多种功能,让本就紧张的用地更加极限。
4.学生交流及活动场地局促,需要在设计中增加交流活动场所,提供更多例如社团活动、科学展示、丰富学习探索认知体验的第二课堂空间。
5.这些不利因素为整个项目的设计提出了巨大的挑战,我们在设计的过程中寻求突破,在局促且不规则的可建设用地上,以满足功能使用为前提,为学生创造多元互动式的交流空间,且让整个建筑真正的适应场地,并重新整合校园规划。
设计策略
1.抬高正负零,利用下沉广场作为地下室,减少开挖的同时解决了场地低洼积水问题,河道退线内的下沉区域形成天然的半私密室外活动空间,减少对教学区的干扰;底层架空让学校的交通体系贯穿,从校门贯穿至后部的紫云楼。
2.综合楼主体呈“S”型,各个区间段通过与周边建筑、道路以及跑道形成平行或垂直的方向性来适应地形,最终与原有建筑形成一个半围合的景观中庭,使得空间的利用率最大化,且与原有建筑形成自然且舒适的空间关系。
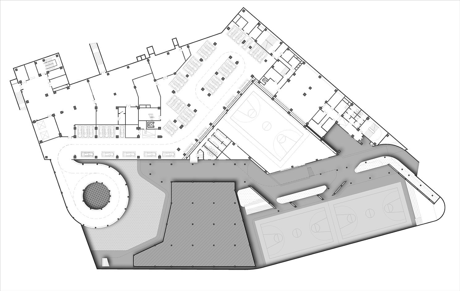
3.学校需要的各种功能高效且合理地布置于整个场地上,负一层设置活动场地及风雨操场,风雨操场打开时,室内外即可连成一体形成完整的下沉运动区。
4. “S”形的建筑形体,穿过聚会前广场,教学区入口设置在中部,上可直达教学区,穿过架空区可至紫云楼。
5.传统教育中普通教室和各类实验室相距较远,学生和老师的日常教学极为不便。方案通过将普通教室和专业教室并排布置,不仅十分便捷地增加教学与实践的机会,而且相对的走廊交通面积并没有增加,同时局部放开的内走廊公共交流空间和灰空间公共活动区域,突破了传统的单一交通走廊功能,亦可以作为学生的课间交流区、互动、科学展览等各类激发学生创造力的公共空间。
6.各个功能分区通过“Z”字形垂直交通链接到一起,在入口处形成具有雕塑感的标识,从入口踏步上可达风雨操场屋顶活动区,下可至下沉广场运动区,二层活动平台边设置看台,面对庭院内篮球场,可从高处俯瞰场上的青春挥洒,更为校园增添视觉上的多元互动式交流。
7.室外活动区域,前广场为聚会广场,升旗场地,两侧分别为“静区”和“动区”,静区作为讨论交流区,动区为篮球及运动场地,亦静亦动,让学生的多元交流更为丰富。
8.在校园内还穿插了校园历史,logo台阶,记录并传承学校文化,教育当下,启示未来。
▼总平面图
鸟瞰图
效果图


建成实景照片




















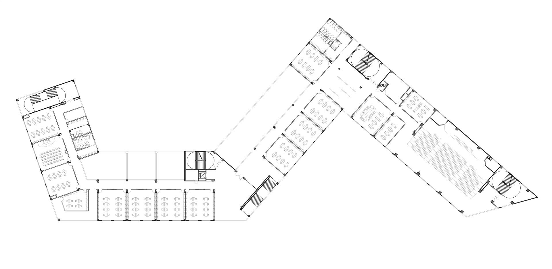
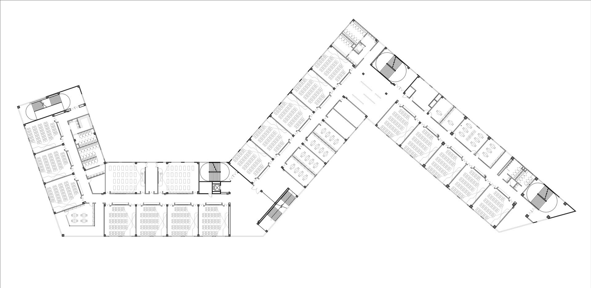
▼建筑设计图
首层平面图



剖面图

负一层平面图

首层平面图

标准层平面图

顶层平面图



使用道具 举报

云南省设计院集团有限公司

积分:52

私信

全部评论
您需要登录后才可以回帖 登录 | 立即注册

本版积分规则