找回密码
 立即注册

QQ登录

只需一步,快速开始

微信登录,快人一步

QQ登录

只需一步,快速开始

微信登录,快人一步

西山区螺蛳湾片区A3-2地块配建24班小学项目

2023-08-09 发布
首页 / 设计类 3578 0 0

云南省设计院集团有限公司

积分:52

私信

本帖最后由 云南省设计院集团有限公司 于 2023-8-11 09:39 编辑

▼项目概述
该项目为昆明市西山区螺蛳湾片区A3-2地块配建24班小学,项目用地南临采莲路,北侧为规划小区,东侧为现有住宅区,西侧为25米宽规划道路。项目整体设计内容为一块200米跑道运动场及一栋综合教学楼,综合教学楼包含了教学用房、行政办公及风雨操场。
总建筑面积:8070.38平方米
用地面积:14630.53平方米
建筑密度:17.99%
容积率:0.55
绿地率:32.54%

▼总体布局
整个用地有两条道路围绕,分别为西侧的25米规划道路及南侧的采莲路,考虑到西侧规划25米将成为城市主干道,道路车流较大,学生出入存在安全隐患,家长接送也会造成一定的交通拥堵,故场地西侧不适宜设置主入口;根据综合分析后将学校主入口设置在紧邻采莲路的用地南侧,入口处布置校前接送广场,方便学生家长接送的同时尽可能缓解交通的拥堵。用地西侧设置仅供消防车及垃圾清运车使用的次入口。
由于用地呈不规则形,结合周边环境,方案将运动场设置在用地西侧,教学区靠用地东侧布置,使整个教学区远离西侧城市主干道(25米规划道路),避免车流噪声干扰,动静分离,使教学区有一个更安静的教学环境。同时西侧开阔的运动场地也给各年龄段的孩子们提供了阳光下自由奔跑的空间。
▼设计概念


随着学生的学习压力越来越大,我们希望通过建筑设计创造一个轻松活泼的学习环境,丰富学生的活动空间,而不是让教学楼成为一个学习的牢笼,这是本次设计的出发点。建筑不仅仅提供学习的空间,同时也提供更多给孩子们释放天性与压力的场所,基于这样一个想法,我们脑海中浮现了这样一个场景,一群小孩在山丘上自由地奔跑,而山丘之下就是学校。所以我们给该设计赋予了一个主题——自由之丘。
▼设计策略

▼总平面图

▼鸟瞰图

▼效果图


▼设计策略教学楼设计
建筑整体布局为“U”型,共四层,局部为一层。
通过楼层的变化,丰富了建筑的整体形态,局部一层的外廊灰空间从功能上确保学生入校后不论天气变化均能风雨无阻的到达各个教学空间;屋面形成可供活动的大露台;同时也围合出师生共享的交流休憩中庭空间。

▼屋顶退台设计
孩子们在紧张的45分钟学习后,都期盼10钟的课间休息,小学生更是充满着无穷的活力与朝气。除了常规的教学区走道空间,我们把关注点放到如何打造一个场所让孩子们能在短暂休息时间内迅速到达,嬉戏、交流、释放自己的天性。
我们将建筑南侧每层设置退台式的活动平台,并通过楼梯连接每层的活动平台直至屋顶活动平台。建筑立面上看仿佛一个小山丘,孩子们可以在山丘上四面嬉戏,上下穿梭,抬头眺望天空,充分感受到自由的气息。功能性上它满足了此年龄段孩子们课间休息时所需的空间、时间及精神需求。

▼风雨操场设计
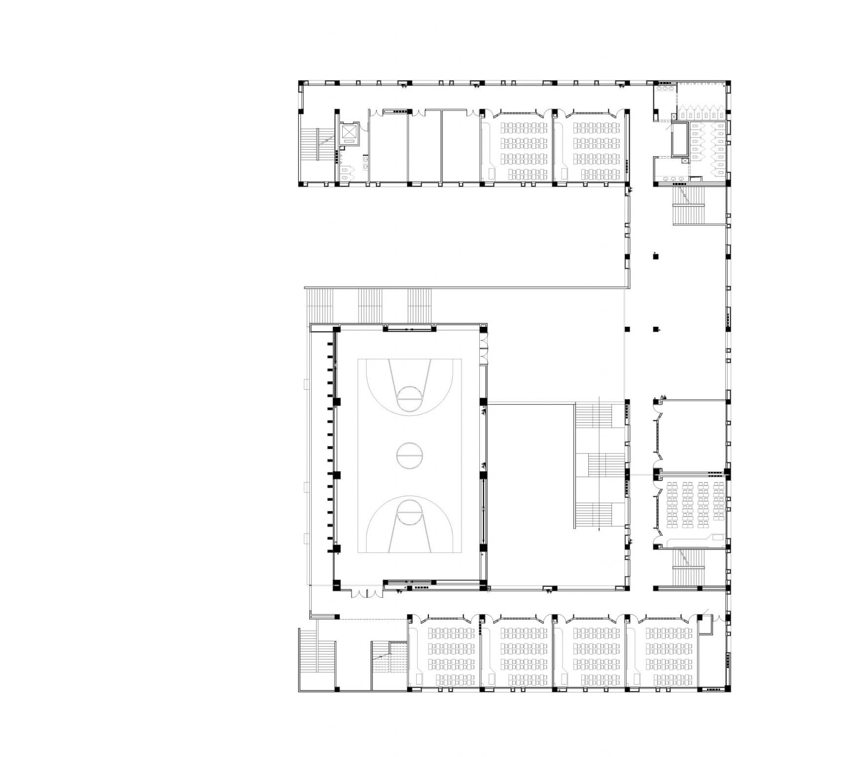
风雨操场设置于综合教学楼与运动场的中间,方便学生直接从教学楼到达。我们将风雨操场放置于二层,一层利用风雨操场外轮廓悬挑的4.5米空间设置了运动场看台,本身也是学生课间休息时的交流场所。
风雨操场作为多功能场所,同时满足集会、训练及比赛的要求。

▼建筑色彩设计
结合小学生自由活泼的天性,建筑立面设计采用简洁但不乏趣味的色彩。立面大部分色彩为深、浅灰色,营造安静舒适的学习氛围;在局部细节中及架空空间里采用明快的彩色,又使得学校氛围轻松活跃。


▼屋面构造设计
上人屋面及活动平台传统构造做法有以下缺点:
1. 屋面面层找坡排水,排水不利,雨天会产生大量积水。
2. 风吹日晒后传统做法的保温层会产生一定变形,导致屋面产生各种高低起伏,学生使用过程会造成很大的安全隐患。

本次设计屋面采用新型架空式屋面构造做法,此做法有以下优点:
1. 将排水放置在面层下,排水坡度可加大,使排水顺畅。
2. 面层不再找坡,保证绝对水平。
3. 每块砖之间留有5毫米的间隙,下雨天雨水由缝隙渗透到下层排水,面层不会产生积水。
4. 架空部分有一定的隔热效果,使保温层不宜变形。
5. 良好的排水性能让活动平台与室内空间可不做高差处理,让学生出入不易摔倒,更加安全。

▼建筑图纸

建筑总图


建筑单体首层平面图


二层平面图



三层平面图


四层平面图


剖面图1


剖面图2


剖面图3
剖面图4


▼总结
随着城市发展,教学用地愈发紧张的情况下,如何通过设计解决增加活动空间的问题值得我们进行更多的探索与研究,除了设计符合规范及常规要求的教学空间外,建筑师应该将更多的关注点放在如何营造符合学生发展与成长的场所。“自由之丘”的概念也蕴含了学习如同登山,努力攀登,逐步提高,希望孩子们未来在攀登知识的高山的时候,是快乐的,自由的。












使用道具 举报

云南省设计院集团有限公司

积分:52

私信

全部评论
您需要登录后才可以回帖 登录 | 立即注册

本版积分规则